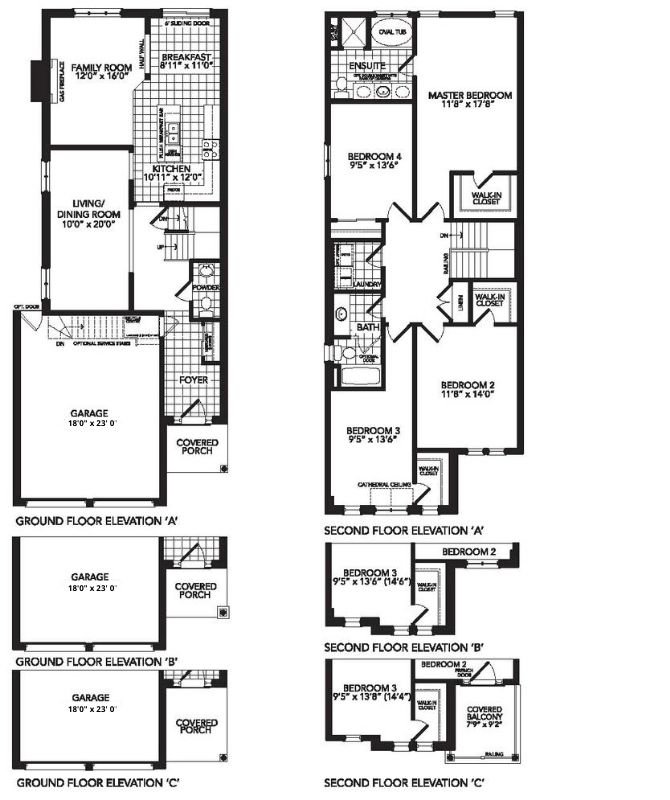
Detached Two Storey Home

All house renderings are artist’s concepts, materials, specifications, elevations & floor plans are subject to change without notice. E & OE Floor plans contain approximate dimensions, actual useable floor space may vary from stated floor areas. Basement windows, dropped archways, boxes & bulkheads that may be required for plumbing & HVAC runs &/or chases, may not be shown on drawings. Exterior colours are conceptual & may not be indicative of actual colour packages.